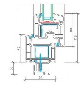
Plastová okna SOFTLINE 70 AD – klasický tvar, kvalitní profil.
Systém VEKA v klasickém designu – nyní také v konstrukční hloubce 70 mm. Oblíbený elegantní tvar s lehce zaoblenými hranami umožňuje obzvlášť malé pohledové šířky a díky neutrální optice se přizpůsobí každé situaci to jsou plastová okna Softline 70 AD.
Hranaté tvary
Profil třídy „A“
10 let záruka


•klasické tvary s lehce zaoblenými hranami a šedým těsněním
•obzvláště nenáročné na údržbu, zasklívací lišta v jedné rovině s plochou
•vysoké hodnoty izolace snižují náklady na topení i vnější hluk
•optimální statika zaručuje trvalou funkčnost a odolnost
•speciálně tvarované výztuhy pro vyšší stabilitu, možnost použití bezpečnostního kování
VEKA systém v klasickém tvaru
• nestárnoucí tvar, velmi dobře izolující vícekomorový systém
• příjemný klidný komfort bydlení, optimální zvuková izolace
• materiál absolutně odolný vůči vlivům prostředí a stárnutí
• hladký povrch rámů, hygienický a nenáročný na údržbu
• optimální stabilita pomocí kovových výztuh
• okna otvíravá sklopná, otvíravá, s klapačkou, posuvná, jedno i vícekřídlové skládací dveře, kom- binované s pevnými, vedlejší dveře, fasády, atd. zasklení dle DIN 18361
• jednoduché zasklení, izolační zasklení, bezpečnostní a speciální zasklení
• příčle uvnitř zasklení, vně nalepené, sklo dělící
Nejpoužívanější dekory
Věděli jste?
Hodnota U – jak dobře okno izoluje?
Rozhodujícím faktorem pro tepelně izolační vlastnosti okna je hodnota Uw (w = window). Popisuje ztrátu tepla oknem zevnitř směrem ven, měřenou ve wattech na čtvereční metr a kelvin [W/(m²K)]. Platí: čím nižší je tento součinitel prostupu tepla, tím větší je izolační účinek okna a tím i úspora energie. Hodnota Uw okna se vypočítává ze specifických součinitelů U. Pro rám Uf (f = frame) a pro zasklení Ug (g = glass). Tyto hodnoty se přepočítávají podle podílů jejich plochy na ploše okna. Navíc se zohledňuje i prostup tepla v okrajové zóně skla, resp. zapuštění skla ψg .



