Hliníková okna ALUPROF MB-86 – vysoká pevnost, úspora tepla.
Hliníková okna ALUPROF MB-86 nabízí vynikající izolační vlastnosti a je vhodný i pro nízkoenergetické domy. Je to první hliníkový systém, který používá křemičitý aerogel vyplněný netkanou skleněnou textilií (ve verzi AERO), který pomáhá dosáhnout špičkových teplotních parametrů (Uw celého okna od 0,8 W/m2K, Ud dveří od 1.0 W/m2K). Vysoká pevnost profilů umožňuje výrobu konstrukcí velkých rozměrů a hmotností (křídlo okna/dveří až 200 kg!), a také konstrukcí odolných proti vloupání.

Vysoká úspora tepla
Nejvyšší pevnost
10 let záruka


-
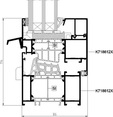
3 varianty izolace – ST, SI a AERO
-
široké izolátory s dodatečnými izolačními prvky
-
2-složkové centrální těsnění dokonale izoluje prostor mezi křídlem a rámem
-
designové zasklívací lišty ve variantách Standard a Prestige
-
různé typy kování včetně skrytých pantů
-
rozsah zasklení až 67 mm (3-skla, akustická, bezpečnostní,…)
-
odolnost proti vloupání RC2, RC3 (WK2, WK3)
-
Důležitým prvkem tohoto systému je jeho kompatibilita se systémem posuvně-zdvižných dveří MB-77HS, takže váš dům nebo stavba získá kompaktní vzhled a zároveň má zaručenu vysokou tepelnou izolaci.
Propustnost vzduchu:
- třída 4, PN-EN 12207:2001
Vodotěsnost:
- třída E 1500, PN-EN 12208:2001
Koeficient prostupu tepla (Uf):
- verze MB-86 ST: od 1,3 W/m2K
- verze MB-86 SI: od 0,9 W/m2K
Odolnost na zatížení větrem:
- třída C5, PN-EN 12211:2001, PN-EN 12210:2001
Věděli jste?
Hodnota U – jak dobře okno izoluje?
Rozhodujícím faktorem pro tepelně izolační vlastnosti okna je hodnota Uw (w = window). Popisuje ztrátu tepla oknem zevnitř směrem ven, měřenou ve wattech na čtvereční metr a kelvin [W/(m²K)]. Platí: čím nižší je tento součinitel prostupu tepla, tím větší je izolační účinek okna a tím i úspora energie. Hodnota Uw okna se vypočítává ze specifických součinitelů U. Pro rám Uf (f = frame) a pro zasklení Ug (g = glass). Tyto hodnoty se přepočítávají podle podílů jejich plochy na ploše okna. Navíc se zohledňuje i prostup tepla v okrajové zóně skla, resp. zapuštění skla ψg .

