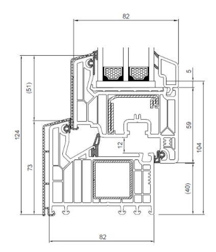
Plastová okna SOFTLINE 82 MD AluClip – okna s hliníkovým opláštěním
Kombinace moderních plastových profilů s hliníkovým opláštěním spojuje výhody dvou velice rozdílných materiálů: optimální tepelná a protihluková izolace plastového okna se setkává s moderním hliníkovým vzhledem v téměř neomezené barevnosti.
Individuální barevné řešení
Při výběru vzhledu fasády nebudou Vaší kreativitě a osobnímu vkusu kladeny žádné hranice! Velká variabilita při řešení opláštění: díky různým možnostem povrchové úpravy hliníku, jakými jsou eloxování nebo práškové lakování ve všech odstínech RAL. V závislosti na individuálních požadavcích jsou možná i vícebarevná řešení. Při pohledu z interiéru může okno nezávisle na vnějším provedení zůstat bílé, případně fóliované v atraktivní barvě nebo dekoru dřeva.
Vysoká úspora tepla
Profil třídy „A“
10 let záruka


